Reihenhäuser, Wiesloch
Neubau von 6 Reihenhäusern
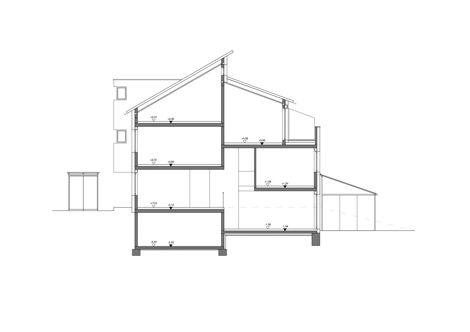
Diese sechs Reihenhäuser entstanden in bester Lage, nur wenige Minuten von der schönen Wieslocher Innenstadt entfernt, in moderner Split-Level Architektur.
Die ca. 155,0 m2 großen Reihenhäuser stehen in zweiter Reihe auf einem sehr ruhigen, idyllischen Bauplatz mit tollem Blick in die begrünte Nachbarschaft. Durch die Anlehnung an das natürliche Gelände entstand eine spannende innere Aufteilung mit viel Licht und offener Grundrissgestaltung. Auf drei Ebenen (plus Kellergeschoss) verteilen sich die sechs Zimmer, zwei Bäder und ein offener Arbeitsbereich. Durch die sinnvolle Anordnung der Zimmer und die Wahl geeigneter Zimmergrößen entstanden viele individuelle Möglichkeiten. Die Bewohner haben vollste Flexibilität bei der Nutzung der einzelnen Wohnräume.
Die energiesparende und zukunftsorientierte Ausführung als Energiehaus bietet den Bewohnern eine fast autarke Energieversorgung. Durch die Nutzung einer Luft|Wasser – Wärmepumpe mit integrierter Wärmerückgewinnung und die Zwangslüftung in den Wohnräumen, wurde auf einen minimalen Verbrauch bei den Nebenkosten gesetzt. Unterstützt wird dieser Minimalverbrauch durch den Einbau einer Fußbodenheizung in allen Räumen (ausgenommen die beiden Kellerräume) und einer 35cm dicken Gesamtisolierung im Dach.
Bauherr
- Privater Bauherr
Bauphase
- Fertiggestellt
Bauzeit
- 2012
Leistungsphasen
- 1-9



