Paddel-Verein Mannheim e.V.
Neubau Vereinshaus mit integrierter Gastronomie an den Rheinterrassen.
Der Verein “Paddel-Gesellschaft Mannheim e.V.” plant den Neubau und Umbau eines Bootshauses mit integriertem Restaurant und Außenterrasse. Die attraktive Lage soll ausgenutzt und ein neuer Anziehungspunkt für die Mitglieder, Besucher, Gäste und Erholungsuchenden geschaffen werden. Ziel ist durch die Neuausrichtung des Vereinshauses die Attraktivität zu steigern, die Jugendarbeit zu fördern und Integrationsprogramme anzubieten um junge Menschen für den Wassersport zu begeistern und somit langfristig neue Mitglieder zu generieren.
Um unterschiedlichen Ideen für ein architektonisches Gesamtkonzept zu entwickeln, wurde ein Ideenwettbewerb mit vier Teilnehmern ausgelobt. Mitte Juli tagten die Preis- und Fachpreisrichter. Die CSM management GmbH fungierte als Wettbewerbsbetreuer.
Ergebnis des Wettbewerbs:
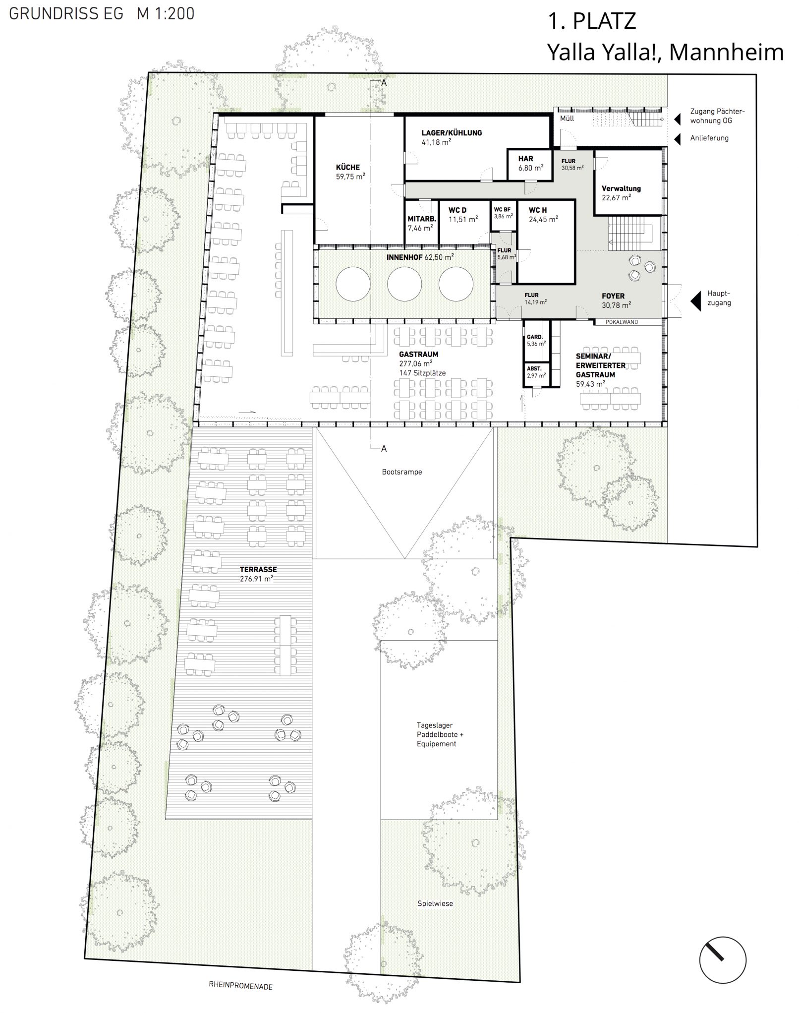
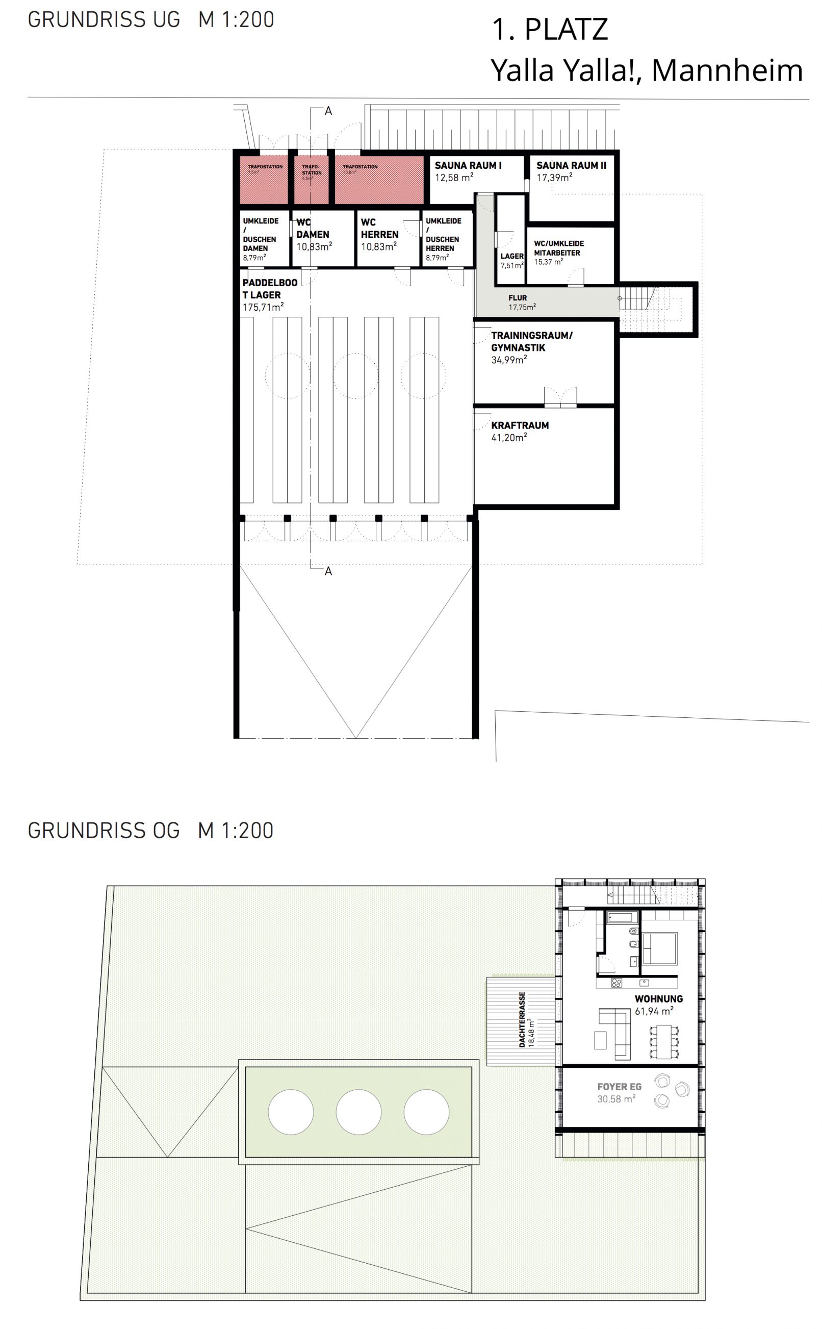
- Platz Yalla Yalla!, Mannheim
- Platz Molter Lindemann Architekten, Kaiserslautern
- Platz Just/ Burgeff Architekten, Frankfurt
- Platz Eben Architektur, Mannheim
Auslober
- Paddel-Gesellschaft Mannheim e.V.
Zeit
- 04/ 2018 - 07/ 2018
Beauftragung
- Wettbewerbsbetreuung




