Gewerbeumbau, Saarbrücken
Nutzungsänderung alter Gewerbeeinheiten
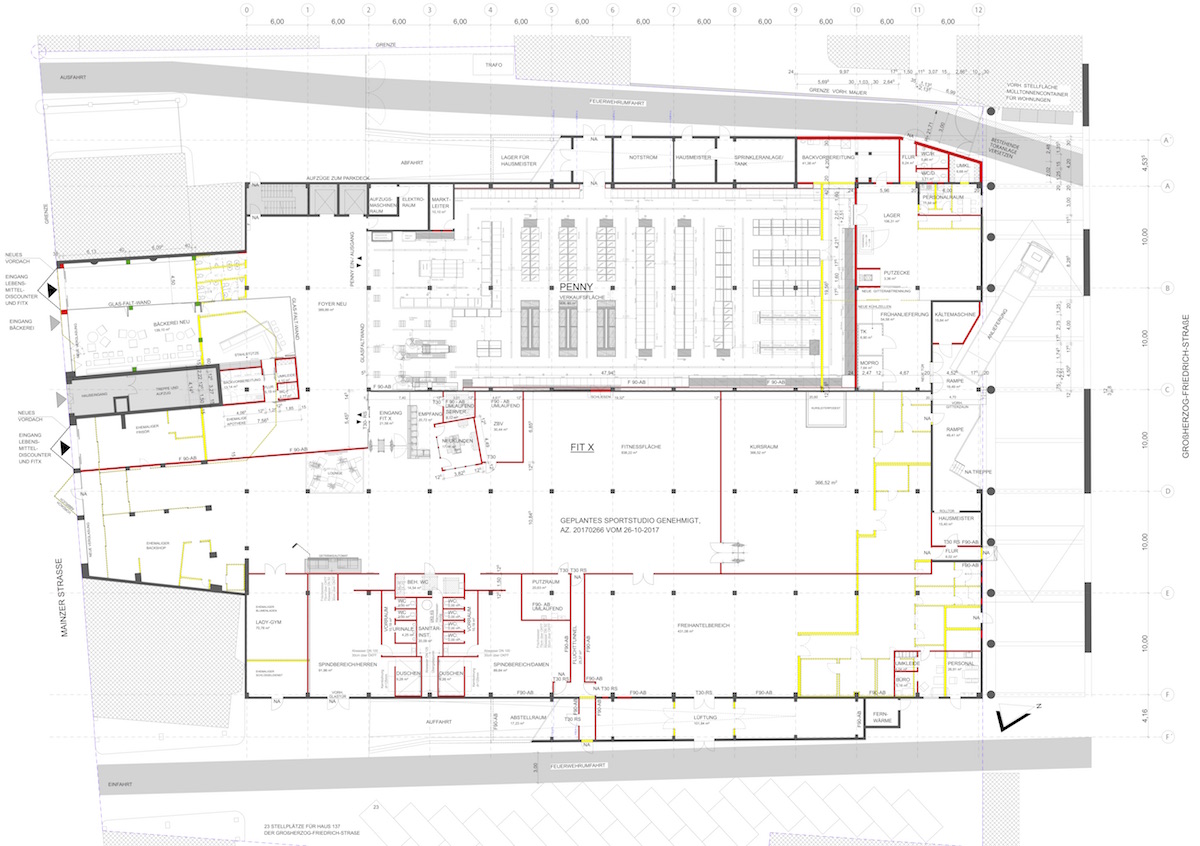
Die in der Mainzer Strasse gelegene Immobilie, bestehend aus einem ehemaligen REWE-Markt, einem Spielkasino und einigen kleineren Gewerbeeinheiten, wurde auf einer Grundfläche von ca. 4.600m2 umgebaut. In Zukunft ist an diesem Standort ein PENNY-Markt, ein Subway und ein neues FitX Sportstudio anzutreffen.
Nur unweit der Saarbrückener Innenstadt gelegen wurden innerhalb von zwei Jahren die Planungen für die Umnutzung im Erdgeschoss umgesetzt und, mit Augenmerk auf Brandschutz, auch einige Veränderungen der Struktur vorgenommen. Über zwei neue Eingänge können die Kunden den Discounter oder das Sportstudio erreichen.
Bauherr
- HISA Projekte GmbH
Bauphase
- Abgeschlossen
Bauzeit
- 2017 - 2019
Leistungsphasen
- 6 - 9

